
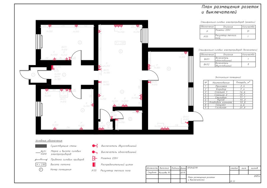
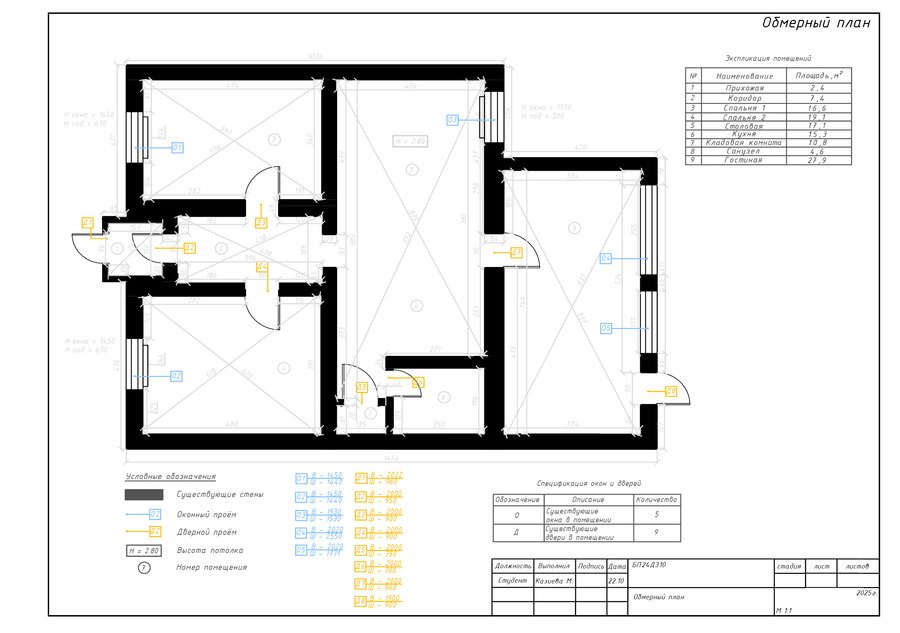
Проект представляет собой альбом учебных чертежей, созданный в рамках изучения курса «Основы цифрового черчения»
Практика включает в себя создание учебных узоров, прорисовку сопряжений, архитектурных обломов, декоративных ваз разной сложности и проекций, а также обмерный план жилого помещения.

