Original size 3408x5120

дизайн-проект апарт отеля в санкт-петербурге

PROTECT STATUS: not protected
9
big
Original size 2560x1846
big
Original size 2560x1846
big
Original size 5120x3692
0

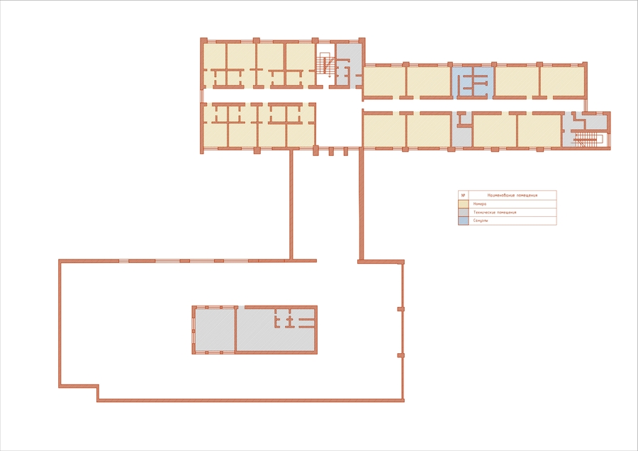
(планировочное решение цокольного этажа)

0

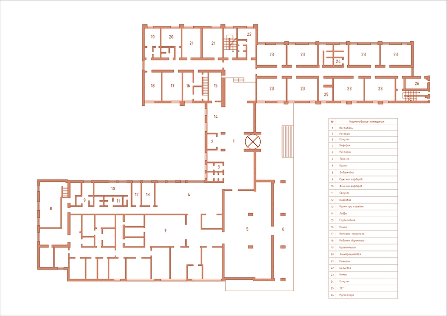
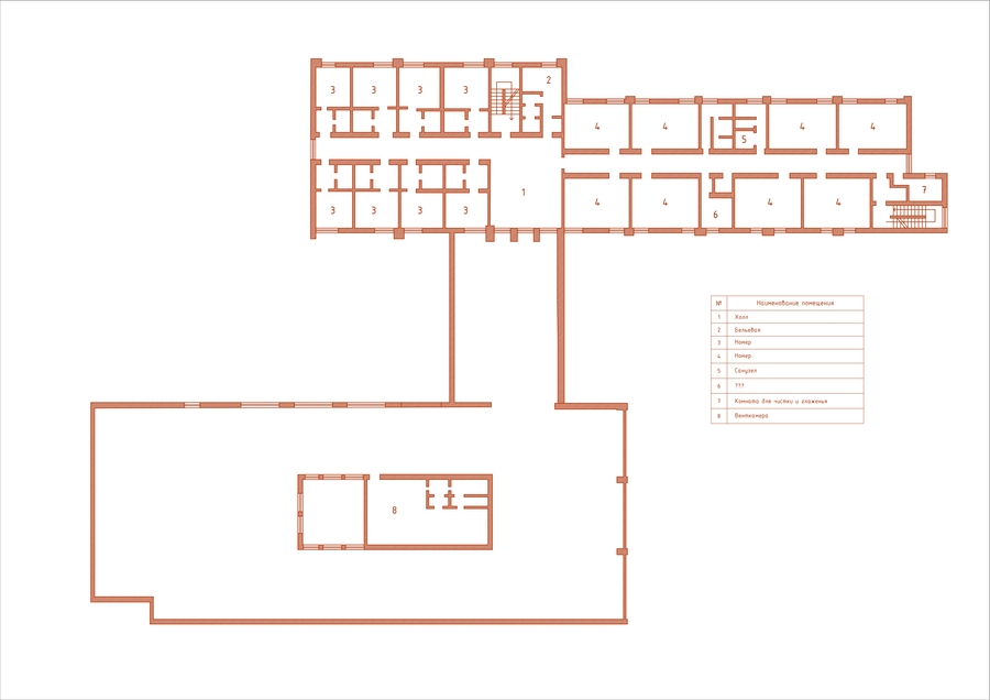
(планировочное решение первого этажа)

0

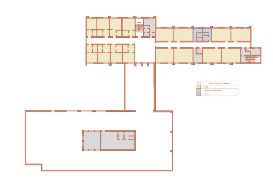
(планировочное решение второго этажа)

0

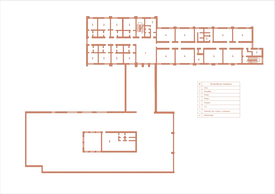
(планировочное решение третьего этажа)

Original size 5120x3692
дизайн-проект апарт отеля в санкт-петербурге
9
We use cookies to improve the operation of the HSE website and to enhance its usability. More detailed information on the use of cookies can be fou...
Show more