В первую очередь благоустройства Фабричного городка в Раменском вошло комплексное проектное положение, которое призвано решить существующие проблемы района.
Вторая очередь благоустройства была посвящена разработке концепции отеля, для которого специально был заложен насыпной остров в центре Борисоглебского озера.
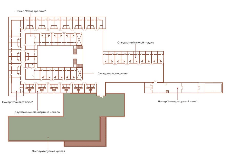
Гостиница рассчитана на 60 номеров различных категорий, начиная от «Стандарта» и заканчивая «Императорским люксом».
Одним из важнейших преимуществ этого отеля является его удаленность от городского шума, но при этом гости города остаются в самом сердце его исторической части.

Ситуационный план

Аксонометрическая проекция здания

Проекции фасадов
Планировки этажей
Планировки номеров категории «Стандарт»
Планировки номеров категории «Стандарт Плюс»
Планировка номера категории «Люкс»







