Этот альбом чертежей создан для дизайн-проекта интерьера шоу-рума для бренда Supaform. Проект выполнен в AutoCAD и подготовлен для дальнейшей реализации.
Original size 3500x2480
шоу-рум // бильярдная
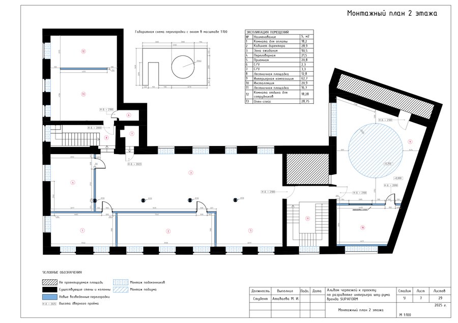
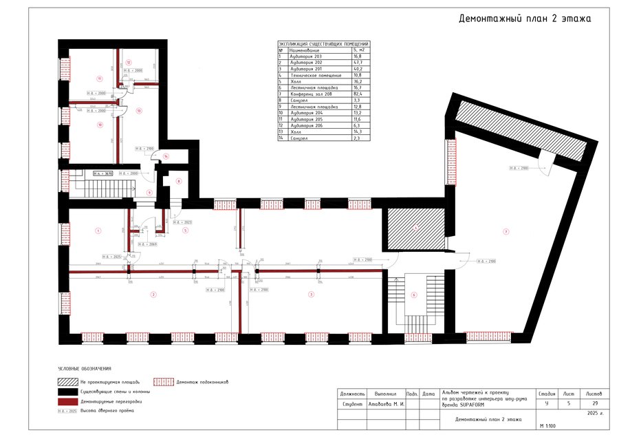
Исходный план // демонтажный план // монтажный план
0
0
0
0
0
0
0
1 этаж
0
0
0
0
0
0
0
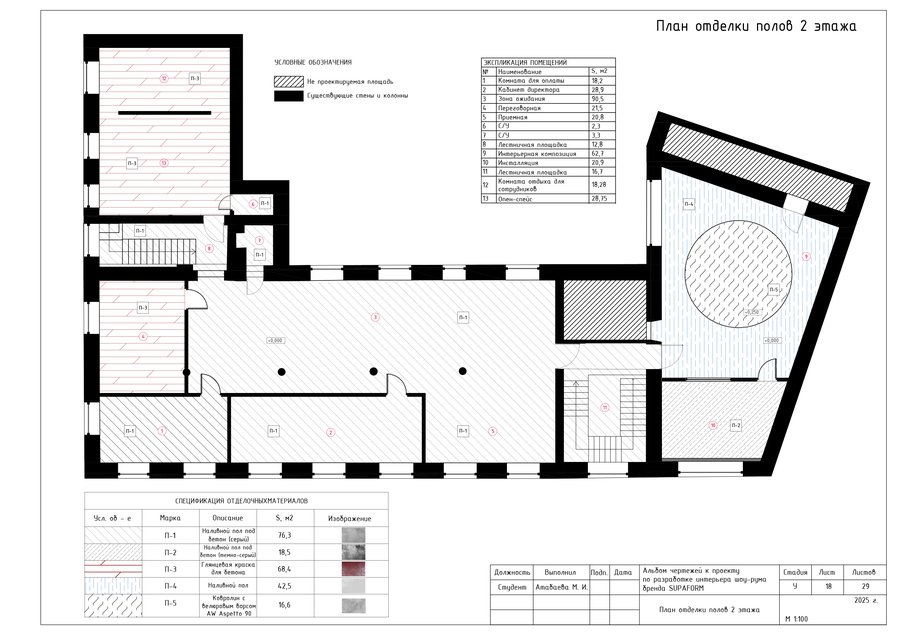
2 этаж
шоу-рум // демонстрационный коридор // бильярдная
Зонирование
Original size 2480x1750
План расстановки мебели // габаритная схема // маркировка
План расстановки мебели
Габаритная схема
План маркировки мебели
Original size 3500x2480
шоу-рум // лаундж зона
Планы отделок
0
0
0
0
0
0
0
0
0
0
0
0
0
отделка полов // отделка потолков // отделка стен
Осветительное оборудование
Планы размещения осветительного оборудования
Original size 2480x1750
Схемы групп включения осветительного оборудования
Original size 3500x2480
шоу-рум // потолок в бильярдной
0
0
0
0
0
Схемы расположения выключателей / слаботочных и силовых электроприборов
We use cookies to improve the operation of the HSE website and to enhance its usability. More detailed information on the use of cookies can be fou...
Show more
Press space bar to start a drag.
When dragging you can use the arrow keys to move the item around and escape to cancel.
Some screen readers may require you to be in focus mode or to use your pass through key
Press space bar to start a drag.
When dragging you can use the arrow keys to move the item around and escape to cancel.
Some screen readers may require you to be in focus mode or to use your pass through key
Press space bar to start a drag.
When dragging you can use the arrow keys to move the item around and escape to cancel.
Some screen readers may require you to be in focus mode or to use your pass through key
Press space bar to start a drag.
When dragging you can use the arrow keys to move the item around and escape to cancel.
Some screen readers may require you to be in focus mode or to use your pass through key
Press space bar to start a drag.
When dragging you can use the arrow keys to move the item around and escape to cancel.
Some screen readers may require you to be in focus mode or to use your pass through key
Press space bar to start a drag.
When dragging you can use the arrow keys to move the item around and escape to cancel.
Some screen readers may require you to be in focus mode or to use your pass through key
Press space bar to start a drag.
When dragging you can use the arrow keys to move the item around and escape to cancel.
Some screen readers may require you to be in focus mode or to use your pass through key